Fantástico Apartamento Duplex T3, inserido em condomínio privado de luxo, com segurança 24 h por dia com lindíssimos jardins (terreno com a área total de 69.441 m2), dois lugares de estacionamento, arrecadação na cave para arrumos, dois grandes terraços, numa localização privilegiada, perto dos campos de Golfe Millennium e Laguna, da Praia e da Marina de Vilamoura.
Este imóvel com 141m2 de área bruta privativa, constituído por primeiro e segundo andares, é composto por: sala comum, 3 quartos, dois dos quais em suite e 3 casas de banho, uma com banheira de hidromassagem e duas com “walking Shower”; cozinha totalmente equipada com electrodomésticos Bosch; ar condicionado; painéis solares; pré-instalação de gás e esquentador; duas piscinas nas áreas comuns para adultos e crianças com apoio de balneários e WC para ambos os sexos, pelo que é vocacionado para quem valoriza um estilo de vida tranquilo e privilegia o desporto, numa zona calma amplamente servida de pistas cicláveis e pedonais em zona verdes muito bem cuidadas, a cinco minutos de Vilamoura, a 5 minutos da praia e a 1 minuto dos Campos de Golfe Millenium e Laguna.
O acolhimento do imóvel é feito a partir de um hall central, que permite estruturar o apartamento de uma maneira fluída, permitindo uma navegação prática entre as várias divisões e pisos.
A sala apresenta-se como um espaço acolhedor, equipada com grandes janelas e portadas com vidros duplos, estores eléctricos, com muita luz natural, ar condicionado reversível e aquecedor eléctrico moderno fixado na parede e redes mosquiteiras na portada que comunica directamente com o terraço com 15 m2, equipado com painéis em vidro que permite fechar um dos lados. Dada a sua dimensão e disposição, a sala está estruturada em duas áreas distintas, uma destinada a refeições e outra a convívio e lazer, pelo que se assume como um espaço versátil e fluído.
Ainda no primeiro andar, podemos encontrar uma casa de banho social, servida com walking shower, quarto, cozinha com varanda, armários e terraço.
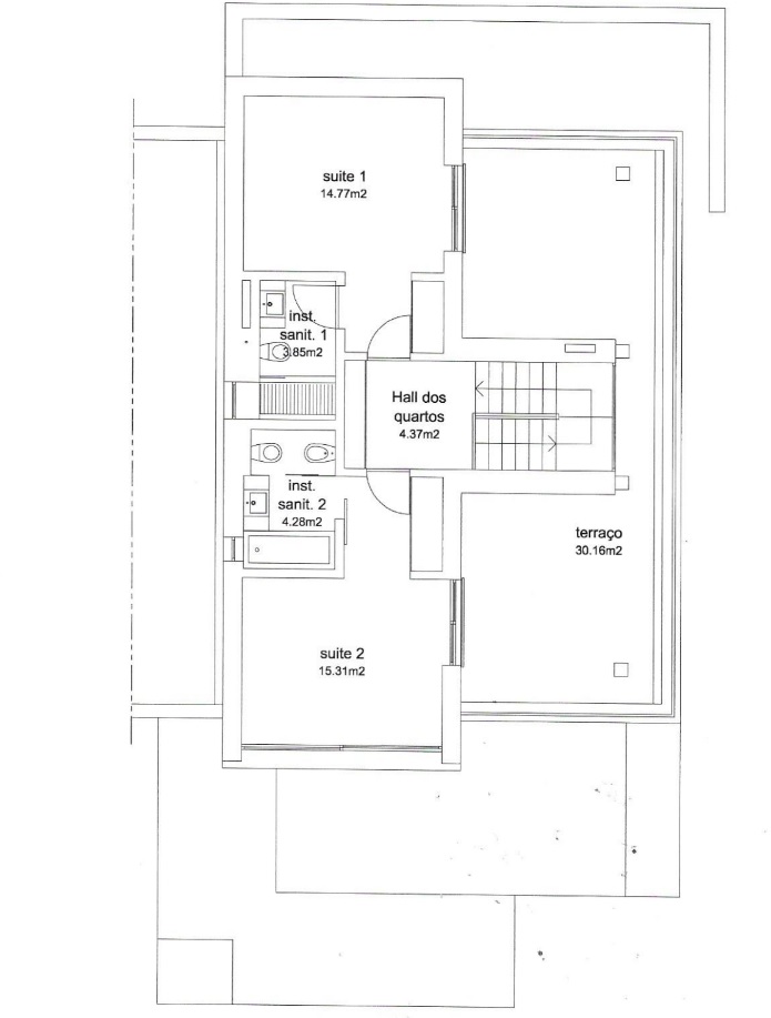
Acessível a partir de uma escadaria que parte do hall, o segundo piso é desvendado, onde se encontram dois quartos em suite, uma divisão de arrumos e um extenso terraço a 180º. Os dois quartos revelam áreas bem estruturadas e todos garantem um bom aproveitamento da luz solar.
Possui ainda 2 lugares de estacionamento e uma arrecadação na cave e estacionamento exterior, assim como uma enorme piscina para adultos e piscina para crianças com apoio de WC e balneários para Senhoras e Homens, situadas nas áreas comuns.
Para além de todas qualidades já indicadas, importa ainda destacar os seguintes atributos de conforto de que o futuro comprador irá usufruir:
- Caixilharia em alumínio, com vidro duplo e caixa de ar
- Candeeiros de tecto nos dois quartos no segundo piso com ventilador integrado.
- Ar condicionado reversível.
- Painéis solares para autoconsumo
- Portão automático com segurança na portaria 24h sobre 24h, com câmaras de vigilância.
Na área envolvente, encontra-se a Marina de Vilamoura com Restaurantes, bares, estabelecimentos de lazer e comercio local. Ainda em Vilamoura pode encontrar superfícies comerciais de distribuição, bem como comércio tradicional e diversos estabelecimentos de lazer e restauração, serviços públicos, ginásios, farmácias e escolas.